Ref
Busco
Tipo
En
Zona
Habitaciones
Baños
Características
Precio

Piso en venta  

Madrid, Salamanca

REF. 5640
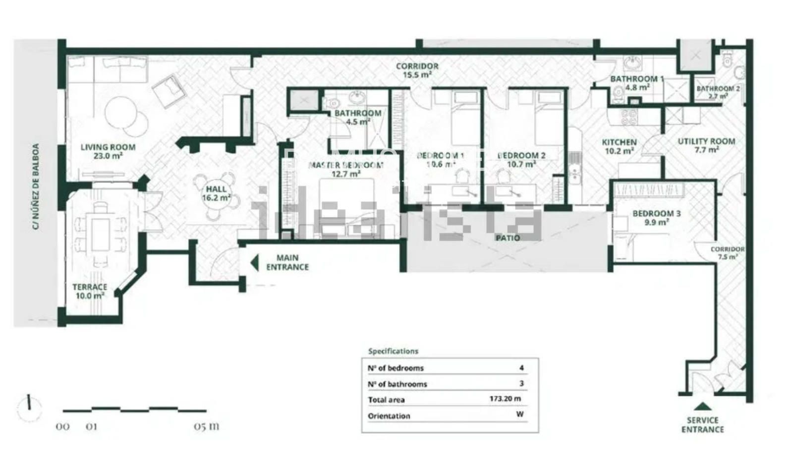
3 DORMITORIOS | 3 BAÑOS | 220 m2
venta: 3.100.000 €

Domus Aurea Capital presenta una magnífica oportunidad de reforma en pleno Recoletos, en la prestigiosa calle Núñez de Balboa.


Esta propiedad representa una excelente oportunidad para crear una vivienda exclusiva a medida. Situada en una elegante finca clásica de gran belleza arquitectónica, con servicio de portero, la vivienda se encuentra en una cuarta planta exterior, lo que garantiza una magnífica entrada de luz natural durante todo el día. Con una superficie aproximada de 220 m², ofrece amplias posibilidades de distribución y diseño, ideal para desarrollar un proyecto residencial de alto nivel adaptado a los gustos y necesidades más exigentes.

Actualmente, el inmueble se encuentra completamente a reformar, lo que brinda la oportunidad de transformar este espacio en un hogar único, combinando el encanto de una finca representativa con las comodidades y el estilo contemporáneo. Una inversión excepcional en una ubicación privilegiada.


Domus Aurea Capital es una boutique inmobiliaria especializada en la intermediación, construcción y gestión de activos inmobiliarios en las zonas prime de Madrid y alrededores.  

Construidos 220 m2
Útiles 181 m2
Dormitorios 3
Baños 3
Altura/Planta 4
Ascensor
Aire acondicionado
Calificación Energética En trámite
Luz
Agua
Conserje
Solicita información

Si deseas más información sobre esta propiedad, por favor, rellena el formulario:

Propiedades similares
 
 3  3  190 m2
Madrid, Chamberí
Piso en venta con 190 m2, 3 habitaciones y 3 baños, Ascensor, Amueblado y Aire acondicionado.
2.550.000 €
 
 4  5  222 m2
Madrid, Chamberí
Piso en venta con 222 m2, 4 habitaciones y 5 baños, Garaje, Ascensor, Amueblado y Aire acondicionado.
2.590.000 €
  Velázquez , 14, 2º Derecha   Madrid
  +34 913 195 709