Ref
Busco
Tipo
En
Zona
Habitaciones
Baños
Características
Precio

Ático en venta  

Madrid, Salamanca

REF. 5578
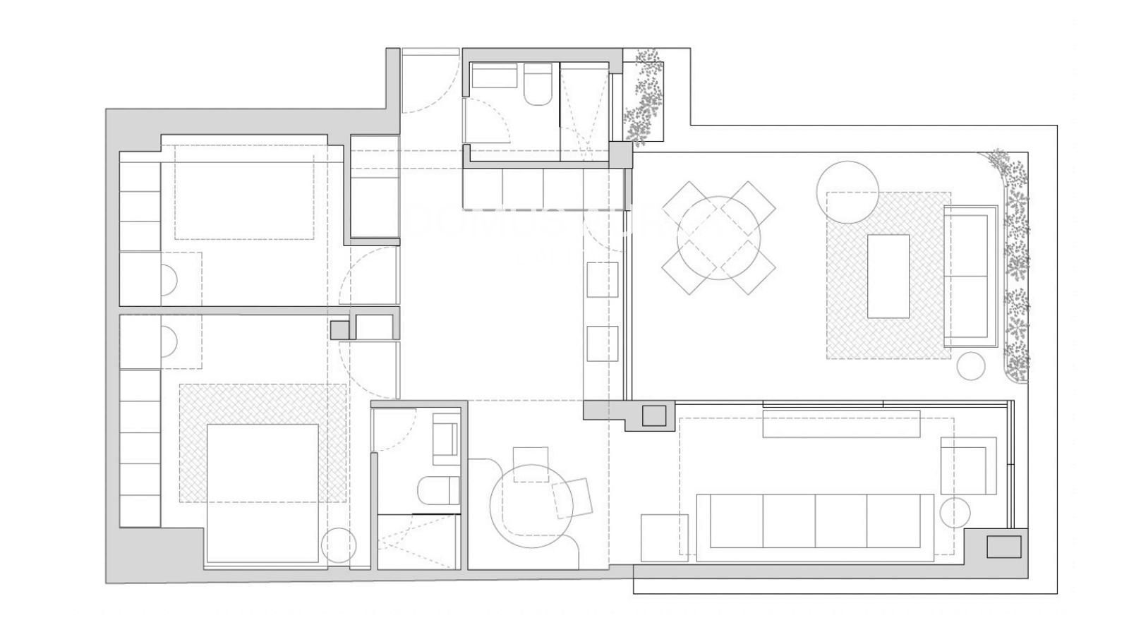
2 DORMITORIOS | 2 BAÑOS | 97 m2
venta: 1.450.000 €

Domus Aurea Capital presenta este ático en plena calle Hermosilla, zona de Goya.


Vivienda de 97m2, se sitúa en la octava y última planta de un elegante edificio de 1967 con gran portal, es la única vivienda en planta garantizando privacidad y comodidad. Se encuentra íntegramente reformada, listo para entrar a vivir con una distribución contemporánea con una zona social que integra salón-comedor y cocina abierta panelada con luz natural, completamente equipada. La zona de descanso dispone de dos dormitorios, destacando el principal en suite, además de un segundo baño completo.

La joya de esta casa es su terraza de 15m2 con vistas a un amplio patio de manzana, con diferentes espacios para disfrutar casi todo el año de ella.


Finca con ascensor, que llega hasta la 7ª planta.


Construidos 97 m2
Terraza 15 m2
Dormitorios 2
Baños 2
Amueblado
Cocina Amueblada
Calefacción Central
Altura/Planta 8
Estado A estrenar
Ascensor
Calificación Energética En trámite
Solicita información

Si deseas más información sobre esta propiedad, por favor, rellena el formulario:

Propiedades similares
 
 2  2  109 m2
Madrid, Centro
Ático en venta en Madrid, con 109 m2, 2 habitaciones y 2 baños, Ascensor y Aire acondicionado.
1.425.000 €
 
 3  2  160 m2
Madrid, Chamartín
Ático en venta en Prosperidad, con 160 m2, 3 habitaciones y 2 baños, Garaje, Trastero, Ascensor, Amueblado, Aire acondicionado y Calefacción Central.
1.370.000 €
  Velázquez , 14, 2º Derecha   Madrid
  +34 913 195 709