Ref
Busco
Tipo
En
Zona
Habitaciones
Baños
Características
Precio

Piso en venta  

Madrid, Chamberí

REF. 5515
3 DORMITORIOS | 4 BAÑOS | 245 m2
venta: 3.900.000 €

Domus Aurea Capital presenta este amplio piso en pleno barrio de Almagro.


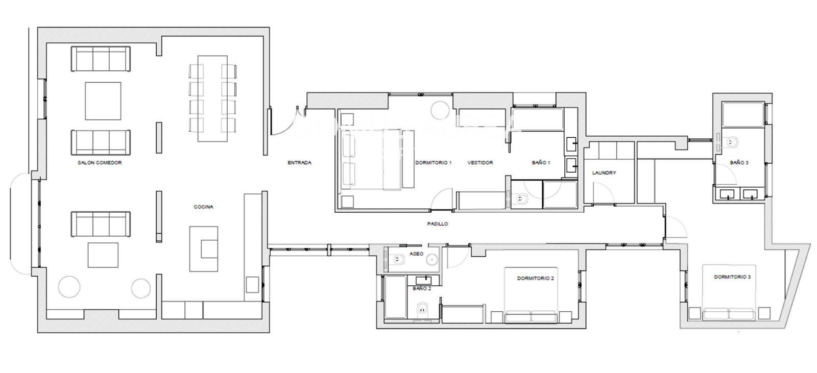
Vivienda de 245m2 situada en una cuarta planta en una finca clásica de los años cuarenta, se encuentra actualmente en plena reforma y se entregará completamente reformada y amueblada, lista para entrar a vivir. Su distribución cuenta con un amplio recibidor, zona social de gran tamaño con salón doble y un mirador a la calle principal, cocina independiente con isla central completamente equipada y zona de comedor, cuarto de lavandería independiente y aseo de cortesía. En la zona de noche, dormitorio principal de grandes dimensiones con su cuarto vestidor a medida y baño en suite, un segundo dormitorio doble con vestidor y baño en suite y un tercer dormitorio doble con baño en suite.

La vivienda cuenta con trastero y la finca tiene conserje,


Domus Aurea Capital es una boutique inmobiliaria especializada en la intermediación, construcción y gestión de activos inmobiliarios en las zonas prime de Madrid y alrededores.

Construidos 245 m2
Dormitorios 3
Baños 4
Amueblado
Cocina Amueblada
Calefacción Individual
Trastero
Altura/Planta 4
Ascensor
Aire acondicionado
Calificación Energética En trámite
Agua
Conserje
Solicita información

Si deseas más información sobre esta propiedad, por favor, rellena el formulario:

Propiedades similares
 
 3  3  200 m2
Madrid, Salamanca
Piso reformado en Recoletos presentado por Domus Aurea Capital. Vivienda de 200 m² con amplio salón-comedor sur, tres dormitorios, dos baños, armarios vestidos, garaje, trastero y portería. Diseño moderno, gran luminosidad y altas calidades. Finalización de obra: diciembre 2025. Una oportunidad única en el distrito de Salamanca.
3.200.000 €
 
 4  4  243 m2
Madrid, Salamanca
Piso en venta en Madrid, con 243 m2, 4 habitaciones y 4 baños, Ascensor y Aire acondicionado.
3.750.000 €
  Velázquez , 14, 2º Derecha   Madrid
  +34 913 195 709