Ref
Busco
Tipo
En
Zona
Habitaciones
Baños
Características
Precio

Piso en venta  

Madrid, Salamanca

REF. 5375
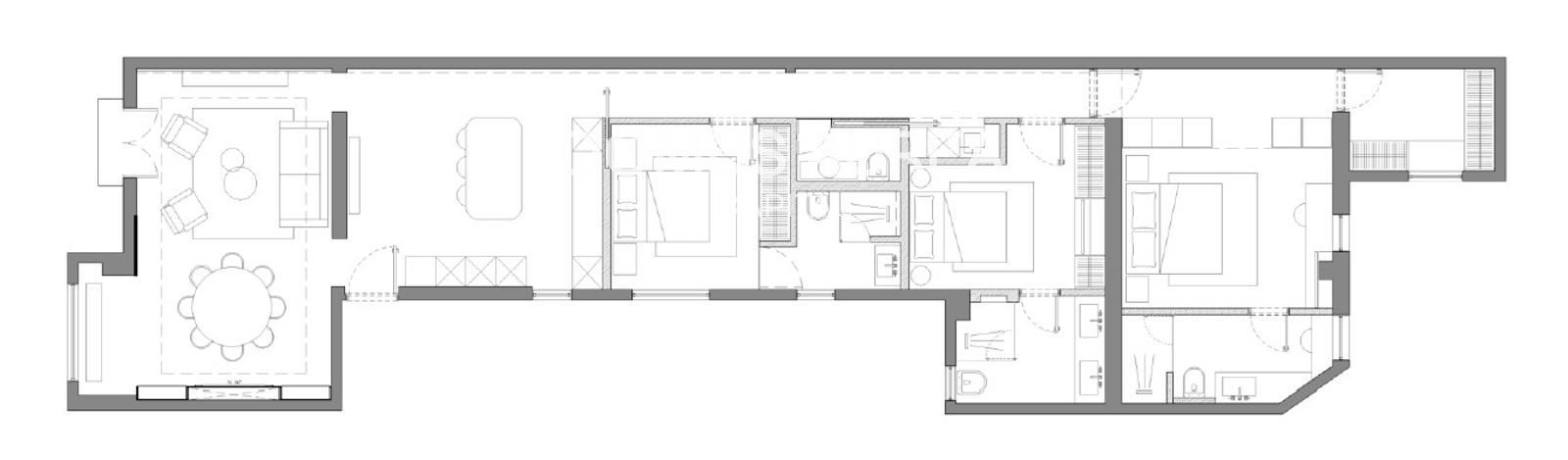
3 DORMITORIOS | 4 BAÑOS | 167 m2
venta: 2.550.000 €

Domus Aurea Capital presenta esta vivienda en pleno Barrio de Salamanca.


La vivienda, con 167 m², se caracteriza por su amplitud, luminosidad y funcionalidad. Presenta una distribución muy equilibrada con tres amplios dormitorios en suite, cada uno con su propio baño, y un aseo de cortesía ubicado estratégicamente para atender a las visitas. El dormitorio principal disfruta además de un gran vestidor, creando un espacio íntimo, cómodo y elegante.

El salón y comedor está orientada al exterior y bañada por abundante luz natural, mientras que las estancias privadas se disponen hacia el interior, garantizando tranquilidad y confort. La separación entre áreas de día y de noche está cuidadosamente planteada para ofrecer armonía y privacidad en el uso diario.

El inmueble se encuentra en un edificio clásico de 1928, con solo dos viviendas por planta, portero, ascensor y una fachada con balconada y mirador que aporta carácter y distinción.


Domus Aurea Capital es una agencia inmobiliaria especializada en la intermediación, construcción y gestión de activos inmobiliarios en las zonas prime de Madrid y alrededores. La mayoría de las propiedades que tenemos disponibles no están publicadas en los portales inmobiliarios, para conocerlas todas consulta nuestra web www.domusaureacapital.com

Construidos 167 m2
Dormitorios 3
Baños 4
Amueblado
Cocina Amueblada
Altura/Planta 1
Estado Reformada
Aire acondicionado
Calificación Energética En trámite
Solicita información

Si deseas más información sobre esta propiedad, por favor, rellena el formulario:

Propiedades similares
 
 2  2  127 m2
Madrid, Chamberí
Piso en venta en Madrid, con 127 m2, 2 habitaciones y 2 baños, Trastero, Ascensor, Amueblado, Aire acondicionado y Calefacción Individual.
2.350.000 €
 
 2  2  157 m2
Madrid, Centro
Piso en venta en Madrid, con 157 m2, 2 habitaciones y 2 baños, Piscina, Ascensor y Aire acondicionado.
2.050.000 €
  Velázquez , 14, 2º Derecha   Madrid
  +34 913 195 709