Ref
Busco
Tipo
En
Zona
Habitaciones
Baños
Características
Precio

Piso en venta  

Madrid, Salamanca

REF. 5341
3 DORMITORIOS | 3 BAÑOS | 130 m2
venta: 2.220.000 €

Domus Aurea capital presenta esta vivienda a reformar a escasos metros de la milla de Oro., en la calle Claudio Coello

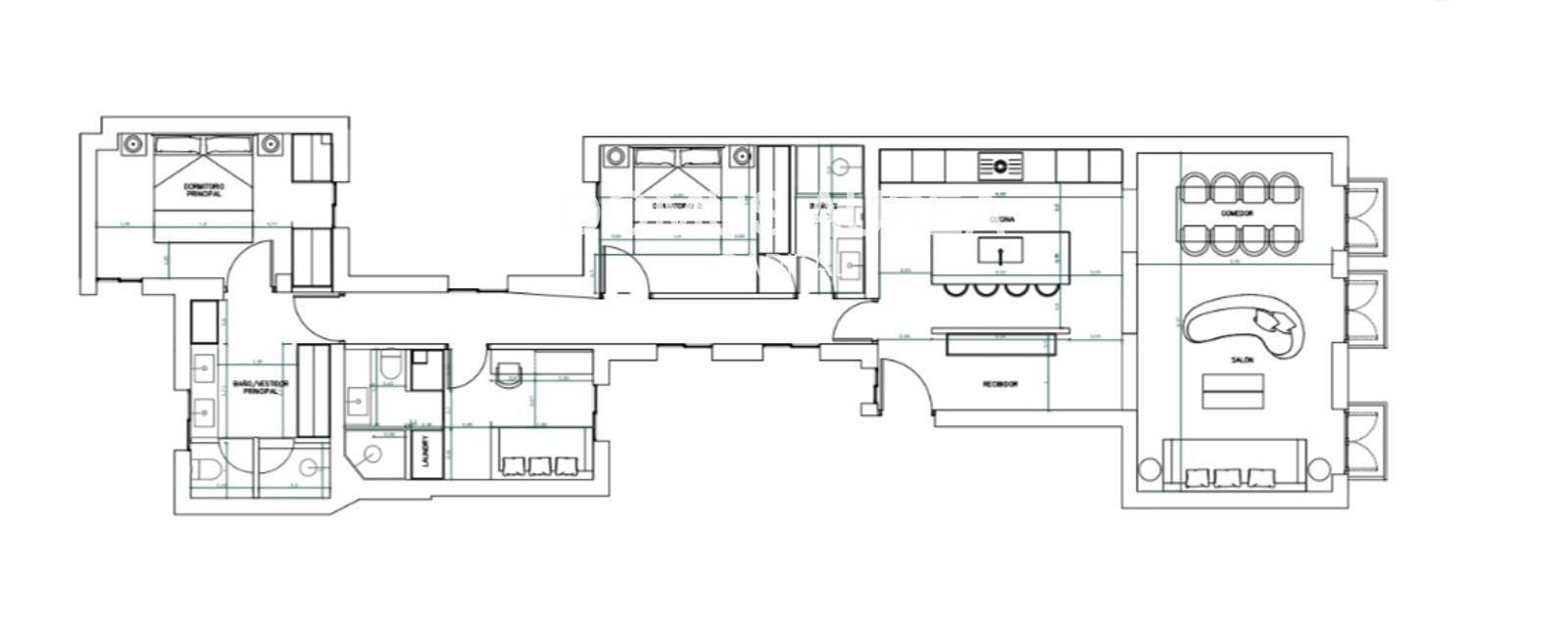
La propiedad de 130 m2 se sitúa en la cuarta planta exterior de un precioso edificio de fachada clásica. Cuenta con tres balcones a la calle. Calefacción individual. Orientación Oeste. A reformar. Se presenta plano de posible propuesta de reforma, las fotos son de posibles terminaciones.

Domus Aurea Capital es una agencia inmobiliaria especializada en la intermediación, construcción y gestión de activos inmobiliarios en las zonas prime de Madrid y alrededores. La mayoría de las propiedades que tenemos disponibles no están publicadas en los portales inmobiliarios, para conocerlas todas consulta nuestra web www.domusaureacapital.com


Construidos 130 m2
Dormitorios 3
Baños 3
Calefacción Individual
Altura/Planta 4
Estado A reformar
Tipo de suelo Madera Natural
Calificación Energética (D) VER
Solicita información

Si deseas más información sobre esta propiedad, por favor, rellena el formulario:

Propiedades similares
 
 4  3  200 m2
Madrid, Retiro
Piso en venta en Menéndez Pelayo, con 200 m2, 3 habitaciones y 3 baños, Ascensor, Amueblado, Aire acondicionado y Calefacción Central.
2.100.000 €
 
 2  3  152 m2
Madrid, Salamanca
Vivienda reformada con tres balcones corridos en la calle Lagasca, en el barrio de Recoletos.
La vivienda pertenece a la cuarta planta de una finca de estilo clásico. Se ha rehabilitado completamente, tiene 152 m2 distribuidos de la siguiente forma: hall de entrada con armario gabanero y aseo de cortesía, zona social distribuida en tres estancias, una zona con sillones y proyector, salón con chimenea y zona de comedor, con cuatro balcones exteriores. Cocina abierta, totalmente equipada con electrodomésticos. En la zona de descanso tenemos dos habitaciones en suite, la principal con vestidor. La vivienda cuenta con suelo radiante frio y calor.
2.300.000 €
  Velázquez , 14, 2º Derecha   Madrid
  +34 913 195 709