Ref
Busco
Tipo
En
Zona
Habitaciones
Baños
Características
Precio

Piso en venta  

Madrid, Chamartín

REF. 5170
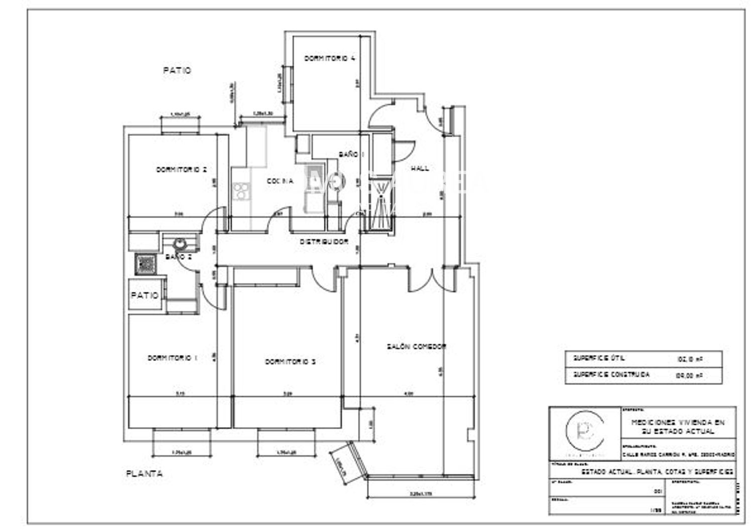
4 DORMITORIOS | 2 BAÑOS | 121 m2
venta: 795.000 €


Presentamos esta vivienda de 121m² para reformar en Prosperidad.

Situada en una planta alta de una excelente finca con portero. La propiedad destaca por luminosidad.  Actualmente se distribuye en hall  de entrada, salón comedor, cocina 4 dormitorios y 2 baños. Ofrece grandes posibilidades de reforma. 

La finca es representativa, bien cuidada y cuenta con dos ascensores y servicio de portería.

Ubicación privilegiada, rodeada de comercios, colegios, zonas verdes y perfectamente comunicada por transporte público.

El inmueble se encuentra en el barrio de Prosperidad, una de las zonas residenciales más consolidadas y tranquilas de Madrid. Con ambiente familiar, todos los servicios a pie de calle y acceso rápido al centro, es una excelente opción para quienes buscan calidad de vida en una zona bien comunicada, segura y con potencial de revalorización.



Construidos 121 m2
Dormitorios 4
Baños 2
Ascensor
Calificación Energética En trámite
Solicita información

Si deseas más información sobre esta propiedad, por favor, rellena el formulario:

Propiedades similares
 
 2  2  84 m2
Madrid, Chamartín
Piso en venta en paseo de la Castellana 177, con 84 m2, 2 habitaciones y 2 baños, Piscina, Ascensor y Aire acondicionado.
860.000 €
 
 2  2  75 m2
Madrid, Tetuán
Piso en venta en Madrid, con 75 m2 y 2 habitaciones y 2 baños.
725.000 €
  Velázquez , 14, 2º Derecha   Madrid
  +34 913 195 709