Ref
Busco
Tipo
En
Zona
Habitaciones
Baños
Características
Precio

Ático en venta  

Madrid, Chamberí

REF. 5109
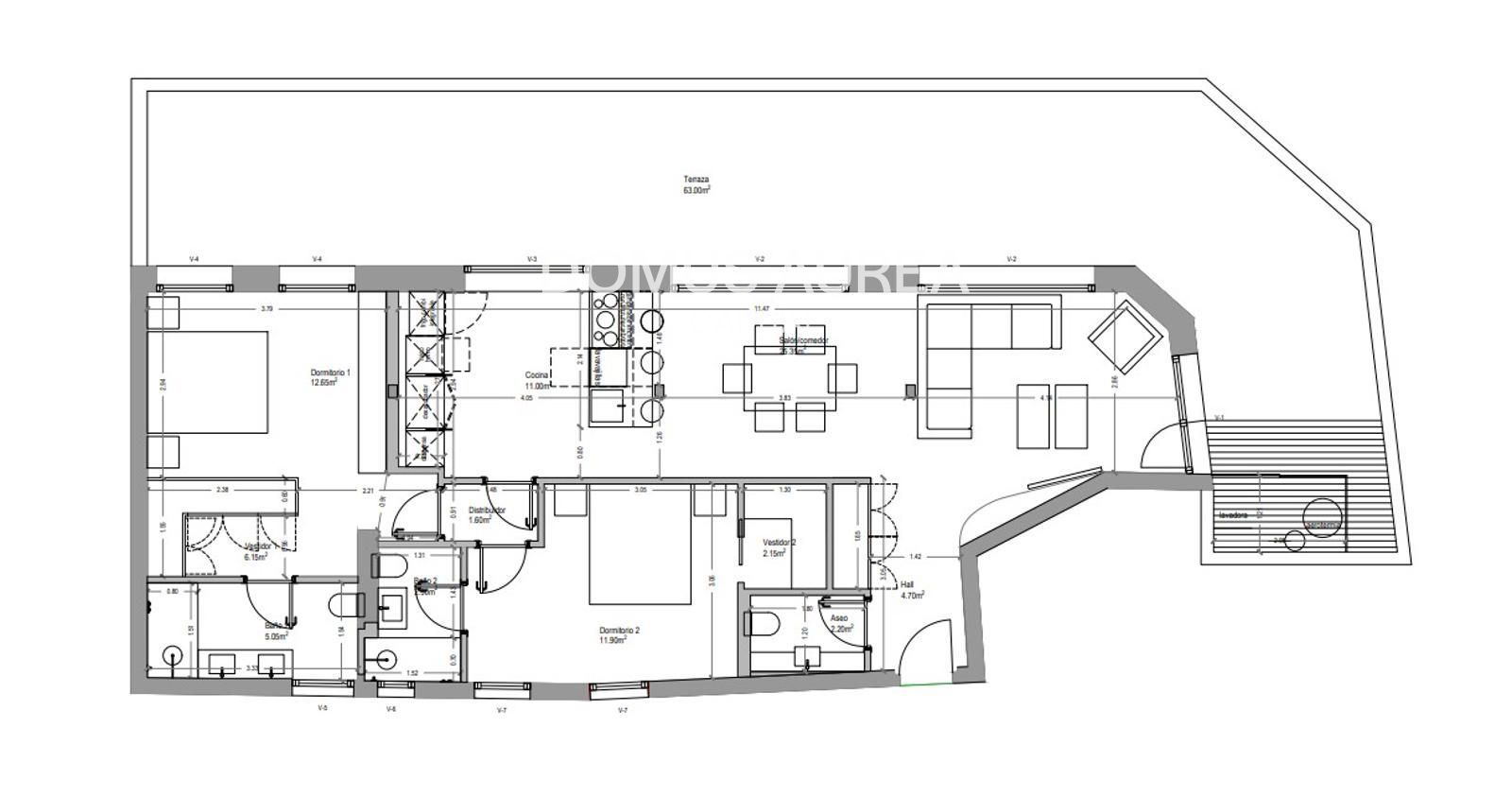
2 DORMITORIOS | 3 BAÑOS | 167 m2
venta: 2.750.000 €

Domus Aurea Capital presenta este exclusivo ático con vistas despejadas en el corazón del Barrio de Almagro.


Se encuentra situado en la séptima planta de un edificio representativo en el Paseo del General Martínez Campos, una de las avenidas más emblemáticas del distrito. Esta luminosa vivienda está siendo reformada con un estilo contemporáneo y elegante, conservando el encanto clásico de la zona y ofreciendo espacios amplios y funcionales.

La propiedad cuenta con dos amplias habitaciones y tres cuartos de baño, además de una espectacular terraza privada de 65 metros cuadrados orientada al sur, ideal para disfrutar del sol y el aire libre durante todo el año.

Incluye una plaza de garaje y dispone de portero físico, lo que aporta comodidad y seguridad a la vivienda.


Domus Aurea Capital es una agencia inmobiliaria especializada en la intermediación, construcción y gestión de activos inmobiliarios en las zonas prime de Madrid y alrededores. La mayoría de las propiedades que tenemos disponibles no están publicadas en los portales inmobiliarios, para conocerlas todas consulta nuestra web www.domusaureacapital.com.

Construidos 167 m2
Terraza 65 m2
Dormitorios 2
Baños 3
Amueblado
Cocina Amueblada
Garajes 1
Altura/Planta 7
Estado A estrenar
Ascensor
Aire acondicionado
Calificación Energética En trámite
Luz
Agua
Conserje
Solicita información

Si deseas más información sobre esta propiedad, por favor, rellena el formulario:

Propiedades similares
 
 3  4  189 m2
Madrid, Salamanca
Ático en venta en Madrid, con 189 m2, 3 habitaciones y 3 baños, Trastero, Ascensor, Amueblado y Aire acondicionado.
2.900.000 €
 
 3  3  178 m2
Madrid, Salamanca

Domus Aurea Capital presenta Cima, un ático de 178 m² en la calle Lagasca, con terraza de 20 m², luz natural y techos altos. En una finca clásica y exclusiva, ofrece privacidad, elegancia y un alto potencial de revalorización en pleno barrio de Salamanca

2.420.000 €
  Velázquez , 14, 2º Derecha   Madrid
  +34 913 195 709