Domus Aurea Capital presenta este piso ubicado en el corazón del prestigioso barrio de Salamanca conocida por su ambiente elegante y sus diversas opciones de ocio, cultura y gastronomía.
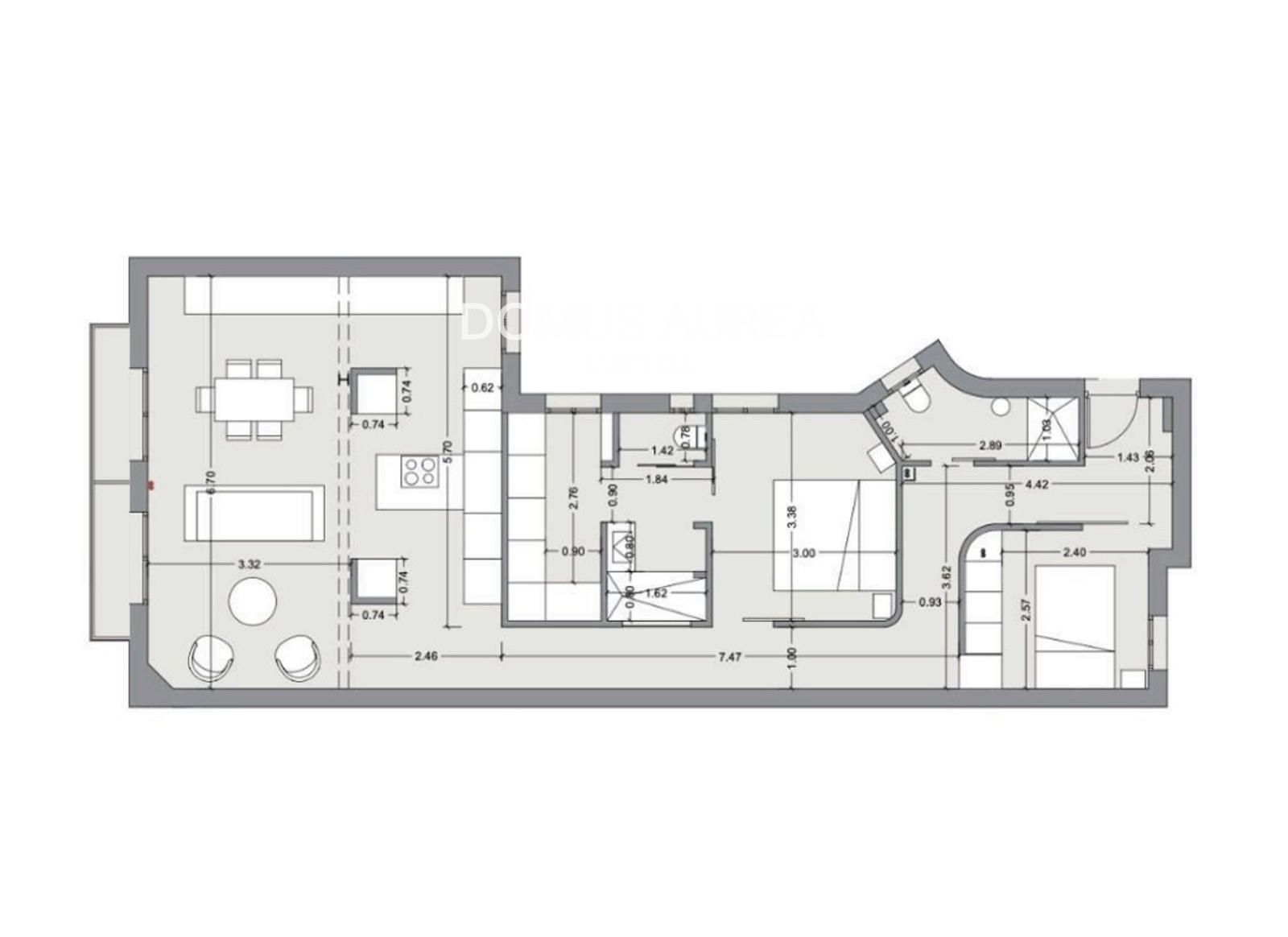
Este inmueble de 112 m² en el quinto piso cuenta con 2 habitaciones y 2 baños muy luminosos. La distribución permite una funcionalidad óptima y comodidad para los residentes y visitantes. La finca construida en 1929, cuenta con conserje y ascensor.
Domus Aurea Capital es una agencia inmobiliaria especializada en la intermediación, construcción y gestión de activos inmobiliarios en las zonas prime de Madrid y alrededores. La mayoría de las propiedades que tenemos disponibles no están publicadas en los portales inmobiliarios, para conocerlas todas consulta nuestra web www.domusaureacapital.com