Ref
Busco
Tipo
En
Zona
Habitaciones
Baños
Características
Precio

Piso en alquiler  

Madrid, Salamanca

REF. 5435
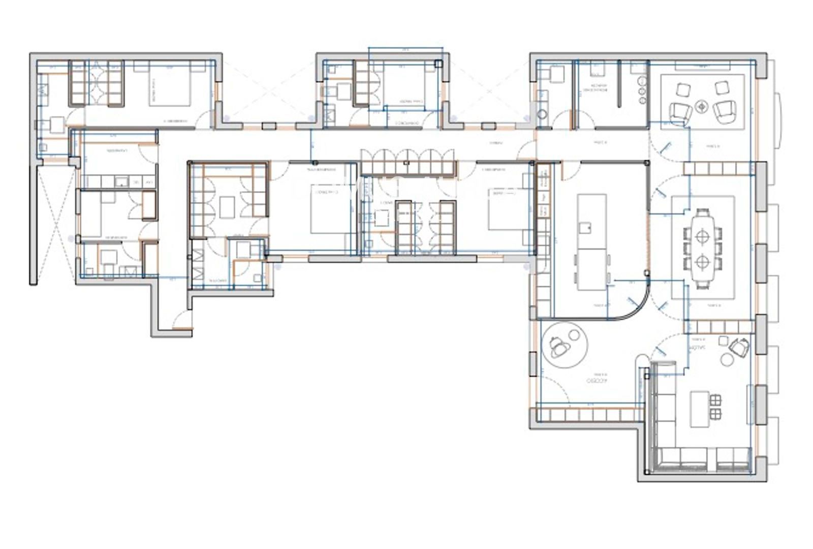
5 DORMITORIOS | 5 BAÑOS | 421 m2

alquiler: 18.000 €/mes
Domus Aurea Capital presenta esta vivienda de 5 dormitorios completamente reformada. 



Vivienda exterior de 421 metros cuadrados catastrales, completamente reformada a estrenar, ubicado en una finca señorial y representativa con fachada protegida. Ubicada en una tercera planta, se distribuye en amplio hall de entrada, con armario gabanero amplio salón en dos ambientes, zona de comedor, 4 balcones a la calle. Cuenta con aseo de cortesía. Cocina independiente perfectamente equipada con todos los electrodomésticos, habitación de servicio con baño y zona de lavandería. la zona de noche cuenta con 4 dormitorios en suite con vestidor y amplios baños. Dispone de sistema de aerotermia para climatización por suelo radiante y aire acondicionado regulable en cada estancia, 



Domus Aurea Capital es una agencia inmobiliaria especializada en la intermediación, construcción y gestión de activos inmobiliarios en las zonas prime de Madrid y alrededores. La mayoría de las propiedades que tenemos disponibles no están publicadas en los portales inmobiliarios, para conocerlas todas consulta nuestra web www.domusaureacapital.com

Construidos 421 m2
Dormitorios 5
Baños 5
Amueblado
Cocina Amueblada
Trastero
Altura/Planta 3
Estado A estrenar
Tipo de suelo Parquet
Ascensor
Aire acondicionado
Calificación Energética En trámite
Luz
Gas
Agua
Conserje
Solicita información

Si deseas más información sobre esta propiedad, por favor, rellena el formulario:

Propiedades similares
 
 5  5  350 m2
Madrid, Salamanca
Piso en alquiler en Madrid, con 350 m2, 5 habitaciones y 5 baños, Ascensor y Aire acondicionado.
17.000 €/mes
 
 5  6  600 m2
Madrid, Salamanca
Piso en alquiler en Madrid, con 600 m2, 5 habitaciones y 6 baños, 2 plazas de Garaje, Ascensor, Aire acondicionado y Calefacción Central.
21.000 €/mes
  Velázquez , 14, 2º Derecha   Madrid
  +34 913 195 709