Ref
Busco
Tipo
En
Zona
Habitaciones
Baños
Características
Precio

Piso en venta  

Madrid, Centro

REF. 5586
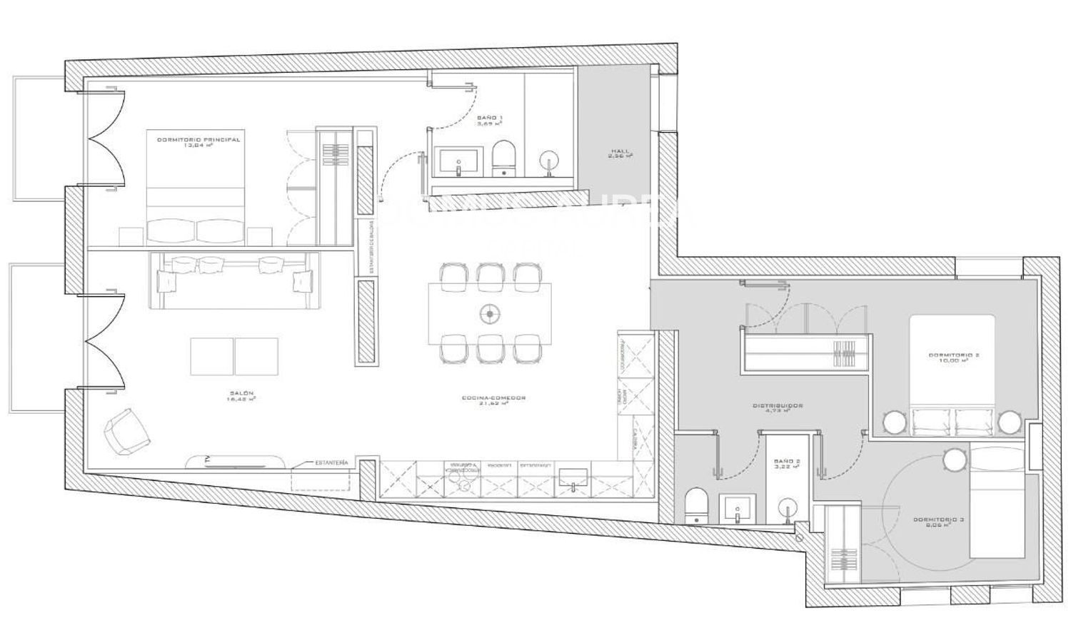
3 DORMITORIOS | 2 BAÑOS | 130 m2
venta: 1.050.000 €
antes: 1.080.000 €

Presentamos esta vivienda situada en una finca clásica de principios del siglo XX, en pleno corazón de Malasaña.


Vivienda de 130m2 situada en una segunda planta exterior de una finca clásica, ha sido objeto de renovación integral, conservando techos altos y los ventanales de época. Se distribuye en salón-comedor con mirador y cocina integrada completamente equipada, dormitorio principal con baño en suite y balcón exterior, segundo dormitorio con balcón francés y un tercer dormitorio individual que puede hacer las funciones de despacho, vestidor o tv room, además de un segundo baño completo.



Domus Aurea Capital es una agencia inmobiliaria especializada en la intermediación, construcción y gestión de activos inmobiliarios en las zonas prime de Madrid y alrededores. 

Construidos 130 m2
Dormitorios 3
Baños 2
Amueblado
Cocina Amueblada
Trastero
Altura/Planta 2
Estado Reformada
Tipo de suelo Tarima
Ascensor
Aire acondicionado
Calificación Energética (B) VER
Solicita información

Si deseas más información sobre esta propiedad, por favor, rellena el formulario:

Propiedades similares
 
 3  3  147 m2
Madrid
CALLE DE ORENSE, 49
1.250.000 €
 
 2  2  100 m2
Madrid, Chamberí
Piso en venta en Madrid, con 100 m2, 2 habitaciones y 2 baños, Trastero, Ascensor, Aire acondicionado y Calefacción Individual.
1.120.000 €
Contáctanos
  Velázquez 14, 2º Derecha
  Madrid - 28001
  913 195 709
  info@domusaureacapital.com

Redes Sociales

Domus Aurea Capital
Don’t forget to fullow us on: